10175 County Road 17 SE Delano, MN
- 2.27 Acres
- 2289 Sq Ft
- 3
- 2

































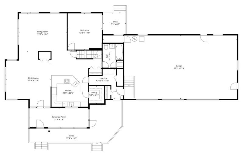
Affordable acreage with a character filled and completely updated home! 2.27 acres with a 3+ bedroom, 2 bath story & a half home featuring an open, spacious layout, newly refinished hardwood floors with in floor heat throughout the main level, tile baths, main floor laundry & 3 bedrooms on one level. Kitchen boasts granite tops, hickory cabinets, stainless steel appliances, double wall ovens & walk-in pantry. Screened porch walks out to a great wrap-around deck. Attached 4 car garage with in floor heat plus a 48x36 Ram outbuilding with 14' sidewalls, 12' door & concrete floor. This one is ready for you to move in and relax!
- Style: Single Family
- Year Built: 1900
- School District: 879
- Garage: Attached Garage,Gravel,Floor Drain,Finished Garage,Garage Door Opener,Heated Garage,Insulated Garage
- Taxes: $4672
Property Location
Courtesy: MLS: 7054677
Information is deemed reliable but is not guaranteed.
© 2026 Regional Multiple Listing Service of Minnesota, Inc. All rights reserved.
